2-к квартира, 45 м², 4/5 эт.

Архангельская область, Архангельск, проспект Советских Космонавтов, 171

3 700 000 руб.

82 223 руб./м²
2-к квартира, 45 м², 4/5 эт.

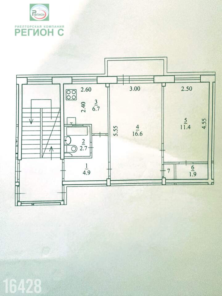
Описание Объект №16428

Квартира с большим потенциалом, но требующая вложений и правильного подхода к планировке.

Квартира состоит из двух смежных комнат, площадью 16,6 и 11,4 кв м.. Окна выходят во двор.

Один взрослый собственник. Обмен на 1-комнатную квартиру.

  • Материал дома :

  • Лифт :

  • Мусоропровод :

  • Этаж :

  • Кол-во комнат :

  • Жилая площадь :

  • Тип :

  • Ремонт :

  • Панельный

  • Нет лифта

  • Нет

  • 4

  • 2

  • 28 м²

  • Квартира

  • Требует ремонта

  • Год постройки :

  • Парковка :

  • Охрана/Консьерж :

  • Этажность :

  • Площадь :

  • Площадь кухни :

  • Балкон :

  • Отопление :

  • 1970

  • Открытая

  • Нет

  • 5

  • 45 м²

  • 6,7 м²

  • Балкон

  • Центральное

Карта Архангельск, проспект Советских Космонавтов, 171

Похожая недвижимость

2-к квартира, 45 м², 4/5 эт.
  • Продажа
3 700 000 руб.

Квартира

2-к квартира, 45 м², 4/5 эт.

Архангельск, проспект Советских Космонавтов, 171

1-к квартира, 28,5 м², 3/5 эт.
  • Продажа
4 100 000 руб.

Квартира

1-к квартира, 28,5 м², 3/5 эт.

Архангельск, улица Розы Люксембург, 68к1

2-к квартира, 30,7 м², 2/4 эт.
  • Продажа
4 290 000 руб.

Квартира

2-к квартира, 30,7 м², 2/4 эт.

Архангельск, улица Адмирала Кузнецова, 17

1-к квартира, 28,2 м², 2/9 эт.
  • Продажа
3 600 000 руб.

Квартира

1-к квартира, 28,2 м², 2/9 эт.

Архангельск, улица Касаткиной, 5

1-к квартира, 30 м², 4/5 эт.
  • Продажа
3 600 000 руб.

Квартира

1-к квартира, 30 м², 4/5 эт.

Архангельск, проспект Советских Космонавтов, 191к1

1-к квартира, 28,1 м², 5/9 эт.
  • Продажа
3 990 000 руб.

Квартира

1-к квартира, 28,1 м², 5/9 эт.

Архангельск, улица Суворова, 11к1

1-к квартира, 30,7 м², 8/9 эт.
  • Продажа
4 300 000 руб.

Квартира

1-к квартира, 30,7 м², 8/9 эт.

Архангельск, проспект Советских Космонавтов, 35